Postigo del Aceite

Población: Sevilla
Provincia: Sevilla
País: España
Coordenadas geográficas: 37.385243 / -5.994965
Tipología: arquitectura militar
Nº inventario: 323j


El postigo del Aceite  es la parte menos investigada de todo el recinto medieval sevillano pues ni siquiera la fecha en que se documenta su nombre actual está bien acreditada; consta que el rey, hacia 1252, concedió una huerta a uno de sus clérigos, García Peres, que estaba situada «a la puerta del alfondiga del azeyte», pero otro documento, de 1255, expedido en Valladolid, certifica la concesión «[…] a Pedro Pérez, clérigo del rey, unas casas con su cocina y establo en Sevilla, en la collación de Santiago, cuatro aranzadas de viña en Torre Quebrada, cerca de las del Obispo de Segovia, dos aranzadas de huerta en la puerta de la Aceituna […]», alhóndiga, topónimos y fechas que no cuadran bien con el postigo del Aceite.

La primera mención explícita e inequívoca de una puerta «que dicen del Aceyte», y su uso histórico, es del año 1345, y se refiere a un solar propiedad de los canónigos en el que se edificaría un almacén para dicho producto; el documento explica que era adyacente al cementerio de San Miguel, donde había una mezquita con su postigo, además de la muralla y la calle de la Vitoria, topónimos bien localizados entre el postigo del Aceite y la cercana catedral.

El nombre de la puerta se justifica en el hecho de ser el acceso exclusivo del aceite a la ciudad, lo que explica su anómalo horario de apertura, advertido por Luis de Peraza «Pasada ésta, está la Puerta del Aceite, la cual suele estar todo el día cerrada y a cierta hora del día, después de comer, que pienso es a las dos horas del día, entra todo el aceite que del Axarafe suele venir. Y en una plaza que está frontero de la puerta están muchos mercaderes que tratan por ello, los cuales lo compran cada uno a su dueño y lo encierran asimismo cada uno en su almacén, de donde lo tornan a vender a mercaderes que para Flandres, Brujas, Inglaterra y otras muy lejos tierras y reinos extraños los suelen cargar. Y pasada la hora que es costumbre de entrar el aceite, luego la cierran la puerta hasta otro día a la hora que se suele abrir». Este dato, es decir, una puerta de tamaño y de apariencia normales, pero denominada «postigo», sugiere que en la edad media sevillana esta palabra designaba un paso de uso especializado.

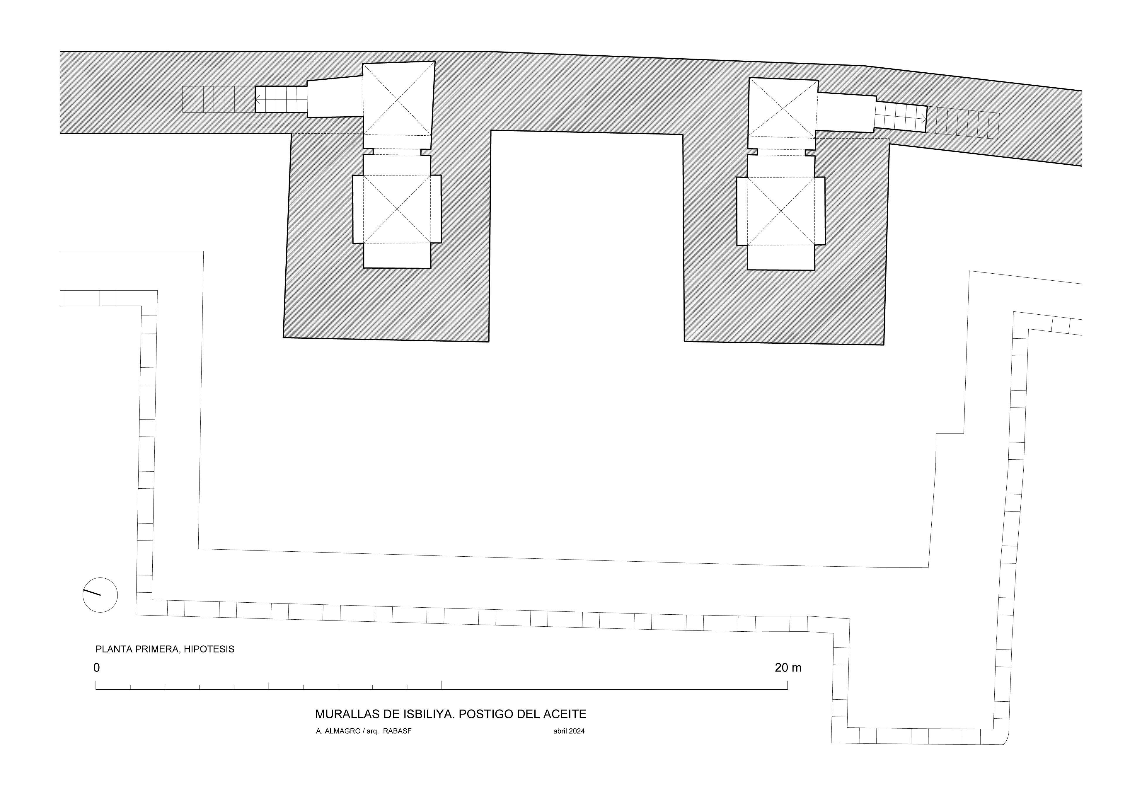
En cualquier caso, queda claro que se trata de un paso perteneciente al recinto amurallado de la medina, dando cara hacia el Arenal, la zona portuaria de la orilla del Guadalquivir. Comunicaba uno de los recintos de la alcazaba almohade, el que se ha signado como «de la plaza del Triunfo», con el «compás de las Naos», el fondeadero fluvial de los navíos marítimos, tramo inmediato al puente de barcas y que quedaba protegido por el recinto de la casa de la Moneda, la torre de la Plata y la coracha de la Torre del Oro. Esta puerta, muy transformada en épocas posteriores, era de acceso directo, dispuesta entre dos torres y dotada de una barbacana exterior que formaba parte unísona con el antemuro con que estaba dotada la práctica totalidad del perímetro exterior urbano. De la estructura original de ella quedan las torres, que se conservan bastante completas, aunque embebidas entre construcciones adosadas, pese a lo cual se las ve descollar desde distintos puntos del entorno.

La gran transformación del contexto urbano de esta puerta data de 1252, cuando el rey Alfonso X el Sabio empezó, a partir de su torre meridional, la construcción de las «Atarazanas del Rio», inmenso arsenal que invalidó como defensa el lienzo de muro adyacente, pues se aprovechó la muralla como apoyo de sus arquerías y supuso el desmoche de la barbacana. Ya en 1992 se hicieron trabajos de arqueología dentro del arsenal, destacando dos datos de interés en el entorno de la primera torre directamente afectada por las obras del astillero; el primero fue demostrar la existencia de la compleja barbacana, que en fecha reciente se ha atestiguado en toda su extensión; el segundo hecho fue que los directores de los trabajos arqueológicos, sin mayor compromiso, calificaron la muralla como «Almorávide» y el antemuro como «Almohade». En todo caso, la temprana construcción de las atarazanas de Alfonso X y la mención expresa del antemuro en la crónica del asedio de la ciudad, garantizan la datación andalusí del muro previo y del antemuro.

Las torres de la puerta tienen un frente de 5,90 m y sobresalían de los lienzos de la muralla una distancia similar. Entre ellas queda un espacio de 5,55 m cerrado por un pequeño lienzo en el que se abría la puerta. Las torres conservan sus merlones rematados con albardillas y dos bandas o impostas que marcan la base y el remate del peto, que tal vez sean originales o al menos antiguos. Su altura hasta la cúspide de los merlones superaría los 15 m. Son torres macizas en su parte inferior, contando después con dos cámaras superpuestas, la más alta situada a la altura del adarve de la muralla que discurría por detrás de la fachada trasera de su cuerpo superior y cuyo acceso se realizaba desde el camino de ronda de la muralla, que aún se ve en fotografías antiguas.  Estas cámaras altas están formadas por dos naves de dirección norte sur separadas por un arco de medio punto y cubiertas por bóvedas de cañón, que en su zona central se intersecan con otro cañón perpendicular formando una bóveda de arista. En los muros exteriores hay nichos con forma de medio punto y de escasa altura que debían dar acceso a unas saeteras hoy tapiadas. Las cámaras inferiores, de planta en cruz de brazos muy poco salientes y cubiertas con bóvedas de arista debieron tener acceso también desde los adarves, a través de escalerillas que descendían por el interior del muro. Desde las cámaras superiores se sube a las terrazas por escaleras de dos tiros. Al menos la torre meridional, cuya parte inferior es visible desde el interior de las atarazanas, tiene su base construida con grandes sillares provenientes de expolio; sus esquinas son de ladrillo formando enjarjes que se acoplan a los cajones de la obra de tapia con que se construyó el resto. A la altura en que se supone se abrían las aspilleras, la fábrica exterior parece ser de ladrillo en todo el frente.

Desconocemos cual fue la forma y las dimensiones del hueco de la puerta pues no ha llegado hasta nosotros ya que fue demolido para ampliarlo en el siglo XVI, aunque podemos suponer que estaría formada por un arco de herradura apuntada con su alfiz. A juzgar por el tamaño del acceso de la barbacana podemos suponer que tendría una anchura de unos dos metros y medio. Tras este arco habría un espacio para el giro de los portones de cierre que quedaría delimitado por otro arco gemelo enrasado con la cara interna de la muralla, al estilo de lo que vemos en la puerta de Córdoba.

La excavación permitió documentar la barbacana delante de la torre sur del postigo, consistente en un muro paralelo a los paramentos de las torres de la puerta, dejando un espacio libre, o liza, bastante mayor que el que hay delante de los lienzos pues, mientras junto a estos solo hay 3,38 m de separación entre los muros, ante la puerta la anchura alcanza los 6,40 m. Esto es así porque la barbacana no tiene un acceso frontal, sino que este se hace por el lateral sur, justo en el ángulo que forma el muro, ángulo que por el exterior se refuerza con una torrecilla sobresaliente 3,15 m en dirección al río y de 5,15 m de frente. No sabemos si el otro ángulo de la barbacana contó con un refuerzo similar pues la zona norte no se ha podido excavar hasta ahora, mientras que la sur queda hoy visible dentro del área excavada en el interior de las atarazanas, en la parte llamada «de la Pescadería», pues allí se instaló la de la ciudad en tiempos de los Reyes Católicos. En el lateral meridional, el antemuro presenta un hueco de algo más de dos metros y medio que estaría dotado de las correspondientes mochetas y jambas añadidas a la obra de tapia para configurar una puerta. El muro que transcurre de este a oeste tiene en este extremo una ampliación como para poder acoger una puerta con doble arco y espacio intermedio para el movimiento de los portones de cierre, la solución habitual en estas construcciones.

La documentación y las formas subsistentes permiten establecer dos importantes reformas, una renacentista, para dar decoro y mayor anchura a la puerta y otra causada por la expansión de las atarazanas a costa de la calle que sale de ella hacia el Arenal ; la primera la proyectó Benvenuto Tortello y se materializo entre 1569 y 1573, consistiendo en sobreelevar el parapeto entre las torres, en la cara este, con un muro que sirvió de soporte a un relieve, con inscripción, que se conserva in situ en la fachada de intramuros; no sabemos si esta obra incluyó la simplificación del acceso a costa de derribar la barbacana que existió ante la puerta, ni tampoco sabemos como se mejoró la fachada extramuros, pues sorprende que, a diferencia de las obras renacentistas de otras puertas, bien atestiguadas y con imágenes fiables, tanto previas (Goles y Arenal) como posteriores (Jerez, Triana, Macarena, Carmona y Carne) ésta no tenga fachada exterior, señal quizás, de su uso restringido o bien a causa de una reforma indocumentada. Un dibujo de 1766 permite identificar sin problemas un añadido extramuros, vinculado a una ampliación de las atarazanas, que modificó el acceso, dejando el trayecto actual, sesgado y asimétrico.

Para la obra manierista del arquitecto napolitano fue necesario demoler la muralla en un frente de más de quince metros que incluía, no solo el pequeño lienzo en el que se situaba la puerta antigua, sino la mayor parte de la que quedaba detrás de las torres. En el lado norte, quizás horadando lo que antes fue muralla hay por una capillita barroca, la de la hermandad del siglo XVII de la Pura y Limpia [Concepción] del Postigo, con acceso desde la calle y en el lado sur por parte del edificio que allí se adosa y por el que hoy se accede a las cámaras y espacios superiores de la puerta. Para configurar la nueva puerta se dispuso una bóveda entre ambas torres recreciendo ligeramente los laterales. En ambos lados del pasaje se formaron mochetas para ajustar los portones de cierre de la nueva puerta y delante de ellas se colocaron dos fustes de columnas con una acanaladura vertical; en estas se podían encajar los tablachos dispuestos para evitar la entrada de agua con ocasión de las anuales crecidas del río. Encima de la nueva bóveda se dispuso un patio, hoy cubierto por una cristalera, que permite comunicar las habitaciones altas de ambas torres creando un pequeño apartamento que se ha complementado con otras construcciones parásitas en las terrazas de ambas torres. En la obra del siglo XVIII se construyó otro tramo de bóveda adelantando una nueva fachada por delante de los paramentos frontales de las torres, enrasada con edificaciones ya adosadas por el exterior a la torre norte. Este cuerpo derivado del proyecto de 1766 avanza formando una pequeña terraza con acceso desde la habitación de la torre norte. Con anterioridad, seguramente al construirse las atarazanas en la segunda mitad del siglo XIII, se demolería el antemuro y la barbacana de la puerta. Todo esto ha desfigurado totalmente la puerta medieval, cuya datación es difícil de precisar. No así la de la barbacana que es sin duda obra almohade de comienzos del siglo XIII.

Antonio Almagro y Alfonso Jiménez


Bibliografía:
  • Archivo de la Catedral de Sevilla (1345). Fondo Histórico General, Caja 10908, 4/2
  • de Amores Carredano, Fernando J. y Cruz Agustina Quirós Esteban, Recuperando las Atarazanas, un monumento para la cultura. Sevilla, Consejería de Cultura 1999.
  • de Peraza, Luis, Historia de la ciudad de Sevilla del Bachiller Luis de Peraza (II). 2, Sevilla: Ayuntamiento de Sevilla [1535] 1997.
  • Fernández Martín, María Mercedes, “El Postigo del Aceite y la Maestranza de Artillería en un dibujo inédito del siglo XVIII”. Ingenieros para la paz, Militares para la guerra: Del Caribe al Sudeste Asiático (1748-1825), 2022: 61-72.
  • González Ferrín, María Isabel, Catálogo de documentos de 1086 a 1312 de os Archivos de la Catedral y del Arzobispado de Sevilla. Sevilla: Cabildo de la S.M. y P.I. Catedral de Sevilla 2022.
  • González y González, Julio. Repartimiento de Sevilla. Estudio y edición preparadas por Julio González 2. Madrid: Consejo Superior de Investigaciones Científicas 1951.
  • Jiménez Maqueda, Danie,l (1999). Las puertas de Sevilla. Una aproximación arqueológica. Estudio histórico-arqueológico de las puertas medievales y postmedievales de las murallas de la ciudad de Sevilla., Sevilla, Guadalquivir
  • Jiménez Martín, Alfonso, Catálogo de [trece] edificios municipales Patrimonium hispalense. Historia y patrimonio del Ayuntamiento de Sevilla. (2 (Catálogo)). Sevilla, Ayuntamiento de Sevilla (2014): 18-44.
  • Serrera Contreras, Juan Miguel, et al., Iconografía de Sevilla. 1650-1790. 2, Madrid: El Viso 1989.