Bāb al-Gīsa

Población: Fez
Provincia: Fez
País: Marruecos
Coordenadas geográficas: 34.068864 / -4.975718
Tipología: arquitectura militar
Nº inventario: 771


La puerta de Bāb al-Gīsa ocupa el punto más septentrional del frente norte del recinto de la medina de Fez correspondiente al sector de la orilla de al-Qarawiyyīn. Este frente de la muralla resulta especialmente sensible a causa de la topografía del terreno que se alza en dirección noroeste a cotas mucho más elevadas que las de la ciudad.

La ciudad de Fez resistió un duro asedio por parte de los almohades antes de caer en sus manos en 1145-46. Tras ello, el califa ʿAbd al-Muʾmin ordenó demoler sus murallas ya dañadas por el asedio y que no fueron reconstruidas hasta finales de siglo por obra de los califas al-Manṣūr (1184-1199) y al-Nāṣir (1199-1213). Esto permite considerar que la muralla que ha llegado hasta nosotros sea básicamente la reconstruida en el periodo almohade avanzado y con ella algunas de sus puertas como Bāb al-Maḥrūq o esta de Bāb al-Gīsa, de las que no existe testimonio escrito de haber sido renovadas en época posterior. Un caso distinto es el de Bāb al-Futūḥ, cuya forma actual no tiene similitudes con ninguna obra de este periodo y sí con una obra posterior como es la Bāb al-Sabʿ de la ciudad palatina meriní de Fās al-Ŷadīd. No así la Bāb al-Gīsa que por su estructura mucho más simple se podría corresponder con las obras realizadas en los primeros años del siglo XIII.

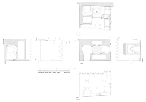
Esta puerta, como es norma casi general en los accesos urbanos de este periodo, constituye un bastión con autonomía defensiva respecto al resto del recinto y con unas dimensiones de 17,00 x 11,75 m. Dicho bastión con altura algo mayor que los lienzos de muralla que a él acometen, contaba con una puerta exterior que daba al campo y otra interior que comunica con la medina.  Entre ambas el recorrido forma un quiebro de 90° y se desarrolla en un espacio interior compuesto por un patio y una sala cuadrada en donde se produce el cambio de dirección.

La puerta exterior es la parte más sobresaliente de todo el conjunto mostrando la preeminencia dada a la zona más visible desde fuera de la ciudad. Su arco es de herradura ligeramente apuntado trasdosado por una arquivolta con forma de arco lobulado mucho más apuntado que el inferior. Ambos quedan recercados por dos pilastras salientes que se unen en la parte superior mediante una platabanda soportada por una serie de ménsulas con forma de nacela rematada con molduras. Toda la composición de esta portada se remata con una sencilla cornisa que sustenta un tejaroz de tejas vidriadas. Sobre él se abren en la pared tres aspilleras antes de alcanzar el remate del bastión coronado por almenas rematadas con cuerpos piramidales.

Un doble arco más al interior delimita el espacio en el que giran las hojas de cierre de la puerta que se cubre con una bóveda de medio punto y en cuyo centro hay un pequeño cupulín gallonado.  Dos vigas de madera dispuestas junto a los arranque de la bóveda contienen las gorroneras en las que giran las hojas.

El patio que sigue a continuación tiene unas dimensiones de 4,10 x 5,20 y comunica por otro arco situado enfrente con un especio en donde se gira hacia la izquierda para alcanzar la puerta de salida hacia la ciudad. A ambos lados del patio hay sendos arcos ciegos, de herradura apuntada, de escaso relieve y en cuyo fondo se abren una puerta, dos ventanas laterales y otra pequeña ventana sobre la puerta. Los espacios laterales y otros situados en niveles superiores están en parte integrados en una vivienda que se extiende por el lado oeste y de la que parecen formar parte locales situados en un piso alto, mostrando todo ello haber sido objeto de transformaciones de datación incierta. Por el lado oriental parece que hay una escalera de subida a alguna de las estancias superiores y a la terraza.

El espacio en que gira el recorrido interno de la puerta tiene arcos en sus cuatro frentes, ciegos, con alfiz y bancos en los lados sur y oeste. Se cubre con un extraño alfarje con jácenas dispuestas en diagonal que parece corresponder a una reforma relacionada con la existencia de la vivienda antes mencionada. Quizás este espacio tuvo una cubrición más arriba, en forma de bóveda y fue seccionado con el aljarfe para incorporar parte de él a la planta superior de la vivienda.

La puerta de paso hacia la ciudad está compuesta también por dos arcos paralelos que delimitan un espacio para el giro de las hojas, más amplio que el de la puerta exterior. También se cubre con una bóveda de cañón con un pequeño cupulín en el centro. En este caso las gorroneras se disponen en una viga adosada al arco más externo. La parte visible de este por fuera del bastión presenta una sencilla arquivolta y un alfiz. Sobre el arco hay una ventana geminada con arcos apuntados de herradura que iluminan una estancia superior ubicada sobre la bóveda que cubre el espacio del giro de las puertas.

Antonio Almagro